推奨ブラウザは以下となっております。ブラウザを切り替えてお試しください。
Google chrome(最新版)/Microsoft edge(最新版)/safari(最新版)
物件概要
「向ヶ丘遊園」駅 徒歩14分
「向ヶ丘遊園」駅 徒歩14分
物件案内
駅徒歩12分!小田急線「向ヶ丘遊園」駅の好立地、築浅1棟アパート
満室想定利回り6.67%!設備充実×安心セキュリティの投資物件
設計住宅性能評価書取得済!安心の構造と充実設備で安定稼働を目指せます。
【収益性・構造】
満室想定利回り6.67%の収益物件です。
満室想定年間賃料は9,216,000円
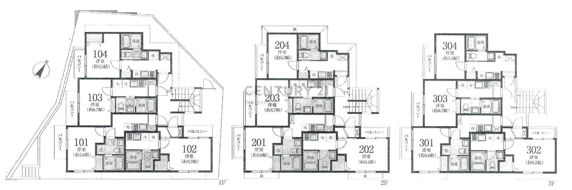
総戸数は1棟12戸(1K×12戸)で、高い収益性が期待できます。
設計住宅性能評価書を取得済で、構造の信頼性も確保。
【設備・仕様】入居者が求める人気設備を完備!
防犯カメラを完備し、入居者様のセキュリティ面に配慮
宅配ボックス、TVモニター付きインターホンを設置
室内設備:浴室乾燥機、温水洗浄便座、バス・トイレ別、ガス2口コンロ、エアコンを完備
各戸専有面積は19.53㎡~21.44㎡
物件詳細
[最終更新日] 2025年12月13日
キーワード
« 前のページに戻る