推奨ブラウザは以下となっております。ブラウザを切り替えてお試しください。
Google chrome(最新版)/Microsoft edge(最新版)/safari(最新版)
物件概要
「向ヶ丘遊園」駅 徒歩9分
その他のアクセスはこちら »
「向ヶ丘遊園」駅 徒歩9分
その他のアクセスはこちら »
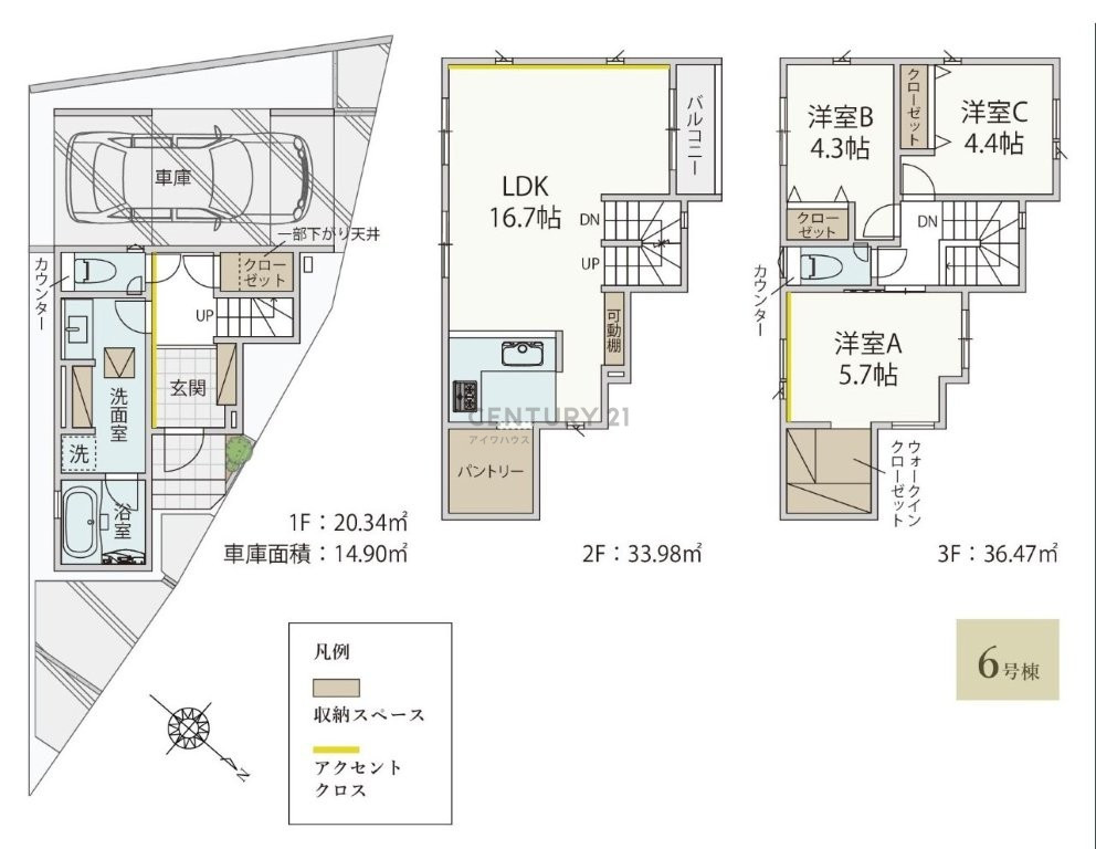
物件案内
向ヶ丘遊園駅9分 LDK+3部屋 省エネ
小田急線「向ヶ丘遊園」駅徒歩9分、小田急線・南武線「登戸」駅徒歩15分と2線ご利用可能。
徒歩5分圏内にスーパー、コンビニエンスストアが点在し、買い物便利な住環境。
LDK18帖に加え3部屋を備えた間取りは、家族構成やライフスタイルに合わせて柔軟に使えます。
各所に収納を配置し、すっきり暮らせる設計。
断熱性の高い省エネ仕様で光熱費も軽減。
2階リビングは陽当たり・風通し良好で快適な住空間を実現。
駐車スペース1台付き、利便性豊かな住宅地で子育て世帯にもおすすめです。
物件詳細
アクセス
●JR南武線「登戸」駅徒歩15分
アクセス
●JR南武線「登戸」駅徒歩15分
[最終更新日] 2025年11月10日
キーワード
« 前のページに戻る