推奨ブラウザは以下となっております。ブラウザを切り替えてお試しください。
Google chrome(最新版)/Microsoft edge(最新版)/safari(最新版)
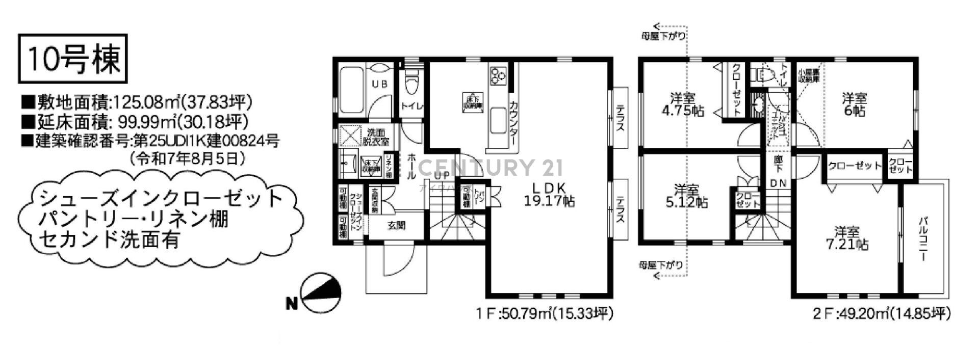
物件概要
「柿生」駅 バス6分
バス停「東柿生小学校」停歩1分
「柿生」駅 バス6分
バス停「東柿生小学校」停歩1分
物件案内
【バス停1分×広々37坪地】第一種低層の閑静な住宅街
小田急線「柿生」駅よりバス6分、「東柿生小学校」バス停より徒歩わずか1分の便利な立地。
駅からのアクセスと、子育てに優しい閑静な住環境を両立した新築分譲地です。
バス停が近く、雨の日も安心のアクセス。
第一種低層住居専用地域に位置し、建ぺい率40%、容積率80%の制限があるため 、ゆとりのある低層住宅が立ち並ぶ閑静な住宅街です。
全棟敷地面積37坪超の広々とした敷地。
全棟にシューズインクローゼットやリネン棚、セカンド洗面を設置
キッチンには便利なパントリー付き(号棟による)
ビルトイン食洗機、浴室乾燥機、大型浴室TV、浄水器一体シャワー水栓など、充実の設備・仕様が標準装備されています。
広々とした土地と、日々の生活を快適にする充実した設備・仕様が魅力の物件です。
周辺環境、間取り詳細、資金計画について、お気軽にお問い合わせください。
物件詳細
[最終更新日] 2025年12月12日
キーワード
« 前のページに戻る