推奨ブラウザは以下となっております。ブラウザを切り替えてお試しください。
Google chrome(最新版)/Microsoft edge(最新版)/safari(最新版)
物件概要
「新百合ヶ丘」駅 徒歩14分
その他のアクセスはこちら »
「新百合ヶ丘」駅 徒歩14分
その他のアクセスはこちら »
物件案内
【利回り7.23%・満室稼働中】新百合ヶ丘エリアのRC造1棟マンション
川崎市麻生区、人気の「新百合ヶ丘」駅・「百合ヶ丘」駅の2駅が徒歩圏内。
令和3年11月に大規模修繕工事および室内のフルリノベーションを実施済みの、鉄筋コンクリート造1棟マンションのご紹介です。
現在、満室稼働中で安定した収益が見込めます(想定年間賃料:約1,432万円)。
外観・共用部・室内ともに綺麗に整備されており、購入後の修繕リスクが軽減されている点も大きな魅力です。
土地面積は約103坪と広々しており、資産性も注目です。
【物件のポイント】
■ 表面利回り7.23%(満室時想定)
■ 令和3年11月 大規模修繕・室内フルリノベーション実施済
■ 鉄筋コンクリート造4階建
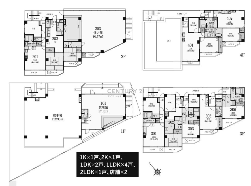
■ 現在満室稼働中(店舗2戸含む計11戸)
■ 小田急線2駅利用可能でアクセス良好
※利回りは現況または満室時の単純利回りであり、将来にわたって保証されるものではありません。
物件詳細
アクセス
●【間取内訳】1K1戸、2K1戸、1DK2戸、1LDK4戸、2LDK1戸、店舗2戸
アクセス
●【間取内訳】1K1戸、2K1戸、1DK2戸、1LDK4戸、2LDK1戸、店舗2戸
[最終更新日] 2026年01月31日
キーワード
« 前のページに戻る